A modern multi-story residential building with wood and gray siding, large windows, and a small balcony, situated on a neighborhood street with parked cars and people walking, biking, and socializing, surrounded by green trees and neighboring houses.
A modern, white residential building with large windows, surrounded by greenery, and three people on the sidewalk in front of it, including a cyclist and two women.

Reworking the Existing Space for a Small Addition


Background

The clients and the owner of this home wanted to expand a small section of their house to create a studio-like space that includes a living room, bathroom, kitchen, and bedroom. This project involved remodeling an existing structure that is attached to the main home.

Project Details

Company: Brown, Fenollosa Architects

Role: Architectural Drafter and 3D Designer

Plans, Sections, and Elevations

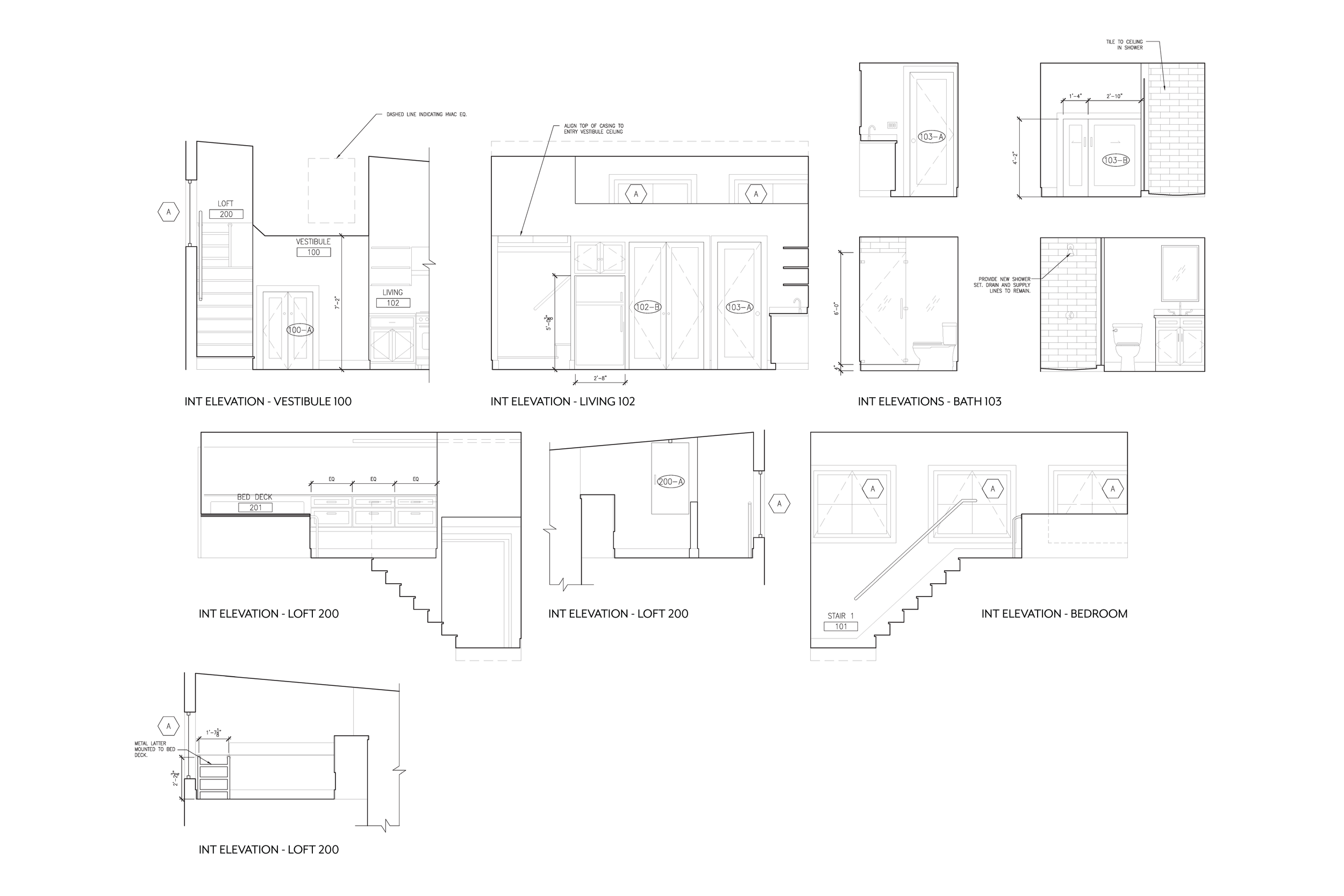
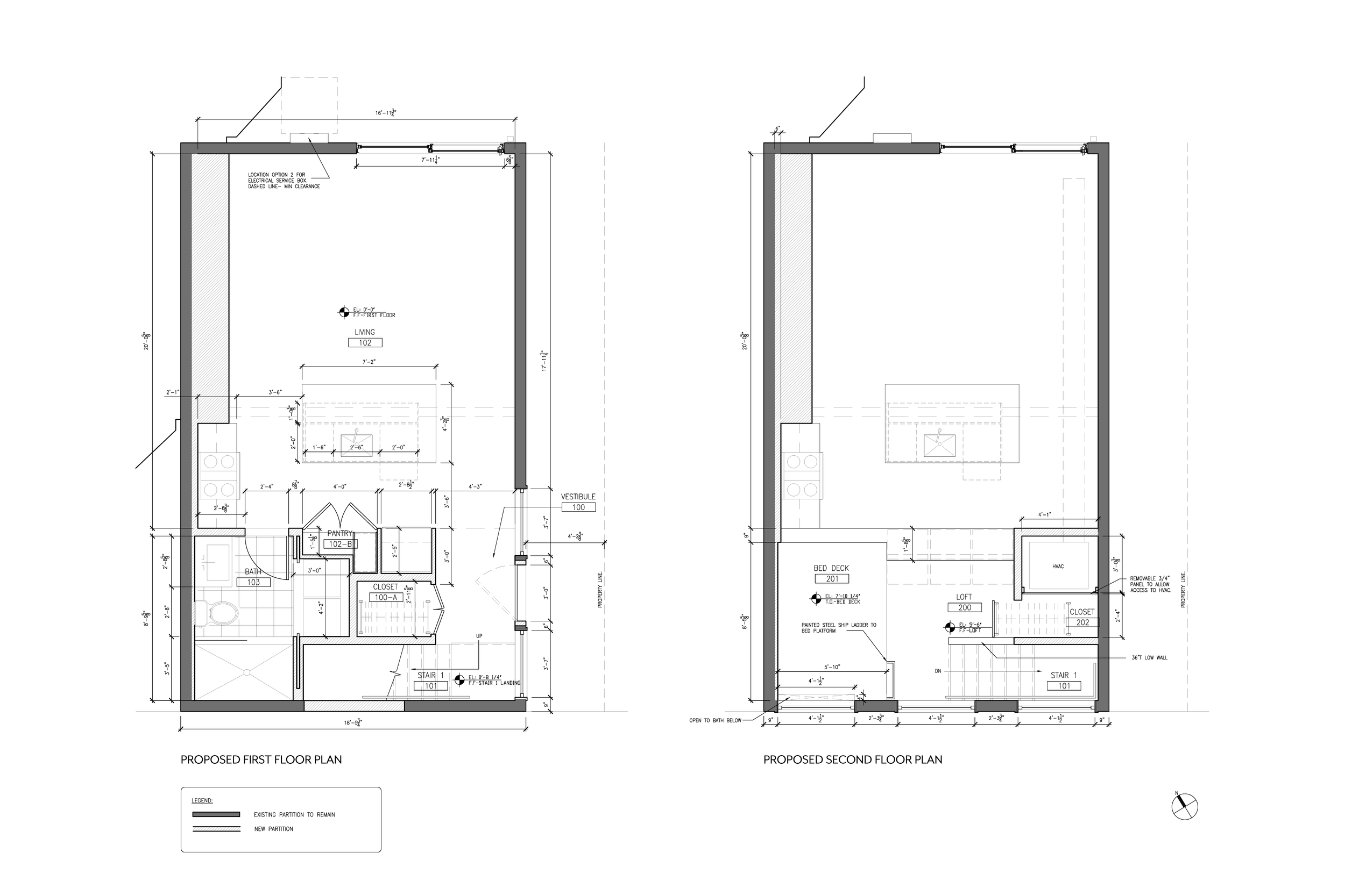
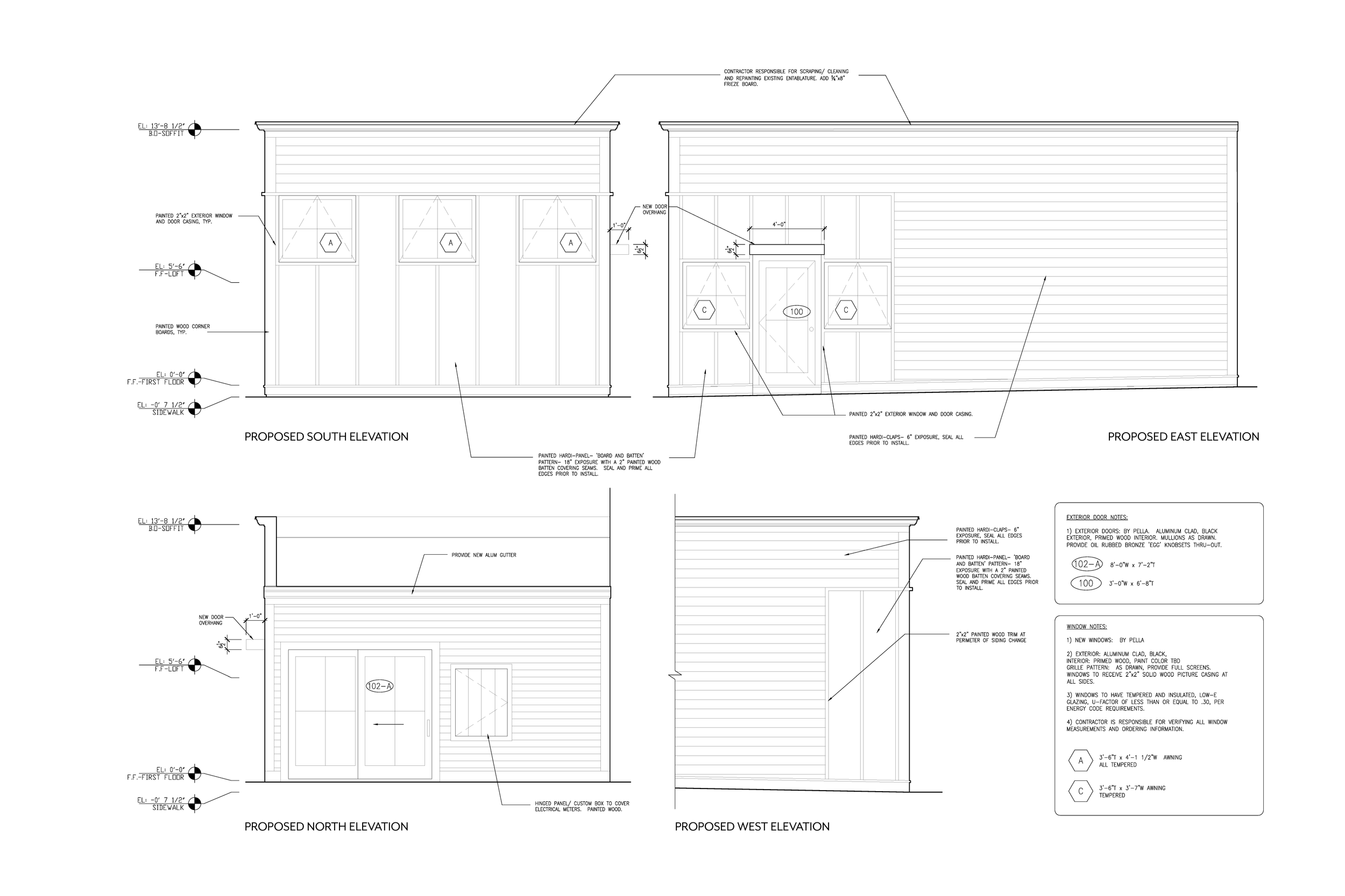
The plans and elevations provide essential technical details regarding the dimensions, material selections, and constraints of the project’s space. The main challenge was to renovate the existing area while incorporating a studio-like addition to the main home, all the while avoiding excessive intrusion into the paved section of the lot.

Architectural blueprint of a house, showing proposed first and second floor plans with rooms, measurements, and structural details.
Architectural cross-section of a house showing interior layout, with kitchen, storage, and different ceiling heights, labeled with measurements.
Architectural drawings with detailed interior, elevations of various rooms including vestibule, living room, bath, loft, and bedroom.
Architectural drawing of a building with detailed elevations for south, east, north, and west sides, including window and door placements, materials specifications, and construction notes.